Within the Interior Decorating Certificate Program, I have learned the fundamental aspects of interior design. Specifically, I gained proficiency in creating comprehensive lighting plans, Reflected Ceiling Plans (RCPs), as well as developing detailed Fixtures, Finishes, and Equipment (FFE) schedules.
The lighting plan intricately aligns with the furniture layout and ensures optimal illumination as well as contributing to the overall aesthetic of the space. This project incorporates a Moodboard, offering a visual representation of the envisioned atmosphere, colour palette and design inspiration. Complementing the visuals, the Design Brief articulates the project’s overarching concept, objectives and the intended user experience. It serves as a guiding document that aligns the design vision with functional requirements, creating a cohesive framework for decision-making and execution. Additionally, the Fixtures, Finishes, and Equipment schedule itemises every element, from furniture and fixtures to finishes and accessories, streamlining the procurement process and ensuring the design vision is executed with precision.



The integration of lighting plans, Moodboards, Design Briefs, and FFE schedules demonstrates not only technical proficiency but also a holistic approach to interior decorating that includes both aesthetic and functional considerations.


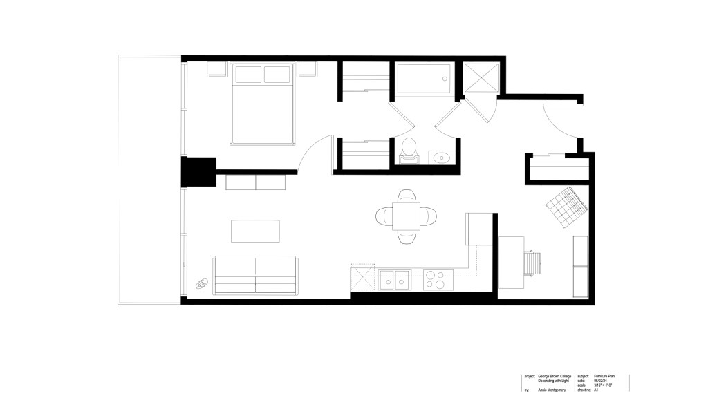
The furniture plan considers the spatial dynamics, optimising the arrangement for both functionality and visual harmony. Thoughtful placement of furnishings is curated to enhance the flow and purpose of the space, creating a balance between form and function.

The lighting plan, intricately aligns with the furniture plan, ensuring optimal illumination while seamlessly integrating with the spatial arrangement. Each light is strategically positioned, not only for functional brilliance but also to contribute aesthetically to the overall ambiance.
The lighting plan presents a clear map for the placement of each light along with the connection of the switches. The legend supports the plan by describing what type of light and switches are used.
